조립식주택 모델 12 번
페이지 정보
작성자 최고관리자 작성일14-08-08 17:29 조회3,328회 댓글1건본문
[믿음과 신뢰의 기업]
전화주시면 친절하고 성실하게 답변하여 드리겠습니다.
-해피홈캠프-상담전화 031-351-3588, FAX(031)353-5482
E-mail: ybrcyber@naver.com
삼우기업해피캠프 홈페이지안내
http://www.happycamp.co.kr
전화주시면 친절하고 성실하게 답변하여 드리겠습니다.
-해피홈캠프-상담전화 031-351-3588, FAX(031)353-5482
E-mail: ybrcyber@naver.com
삼우기업해피캠프 홈페이지안내
http://www.happycamp.co.kr
댓글목록
관리자님의 댓글
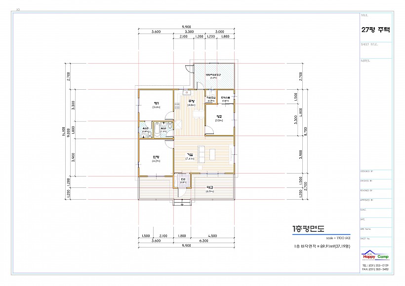
관리자 작성일경기도 화성시 정남에 시공된 27평의 조립식주택 평면도및 입체도
